Stage 18
TITLES ISSUED
LOT 538 AVAILABLE (LAST ONE LEFT!)
Stage 20
Standalone sites are SOLD OUT
Development Blocks for Sale
Stage 25A
HIGH DENSITY DEVELOPMENT BLOCKS AVAILABLE
Stage 21
Standalone sites are SOLD OUT
Development Blocks for Sale
Stage 24
NEW STAGE RELEASE
LOT 805 AVAILABLE (LAST ONE LEFT!)
A PLACE TO CALL HOME
Welcome to where you belong
With over 1,800 lots planned and several hundred new homes already completed, Greenhill Park offers the chance to build your ideal new home in Hamilton’s newest suburb.
Spread out over 136 hectares of freehold farmland, Greenhill Park provides house and land packages in an attractive and convenient location.
The entire suburb has been purposefully designed as a fully functioning neighborhood, with excellent amenities and plenty of green space for its residents to enjoy.


SECURE YOUR SECTION
The next stages are opening soon, with new sections in a variety of sizes from 175m² to 500m² becoming available.
All previous stages in this popular suburb have sold out quickly, so hurry to secure your preferred lot.
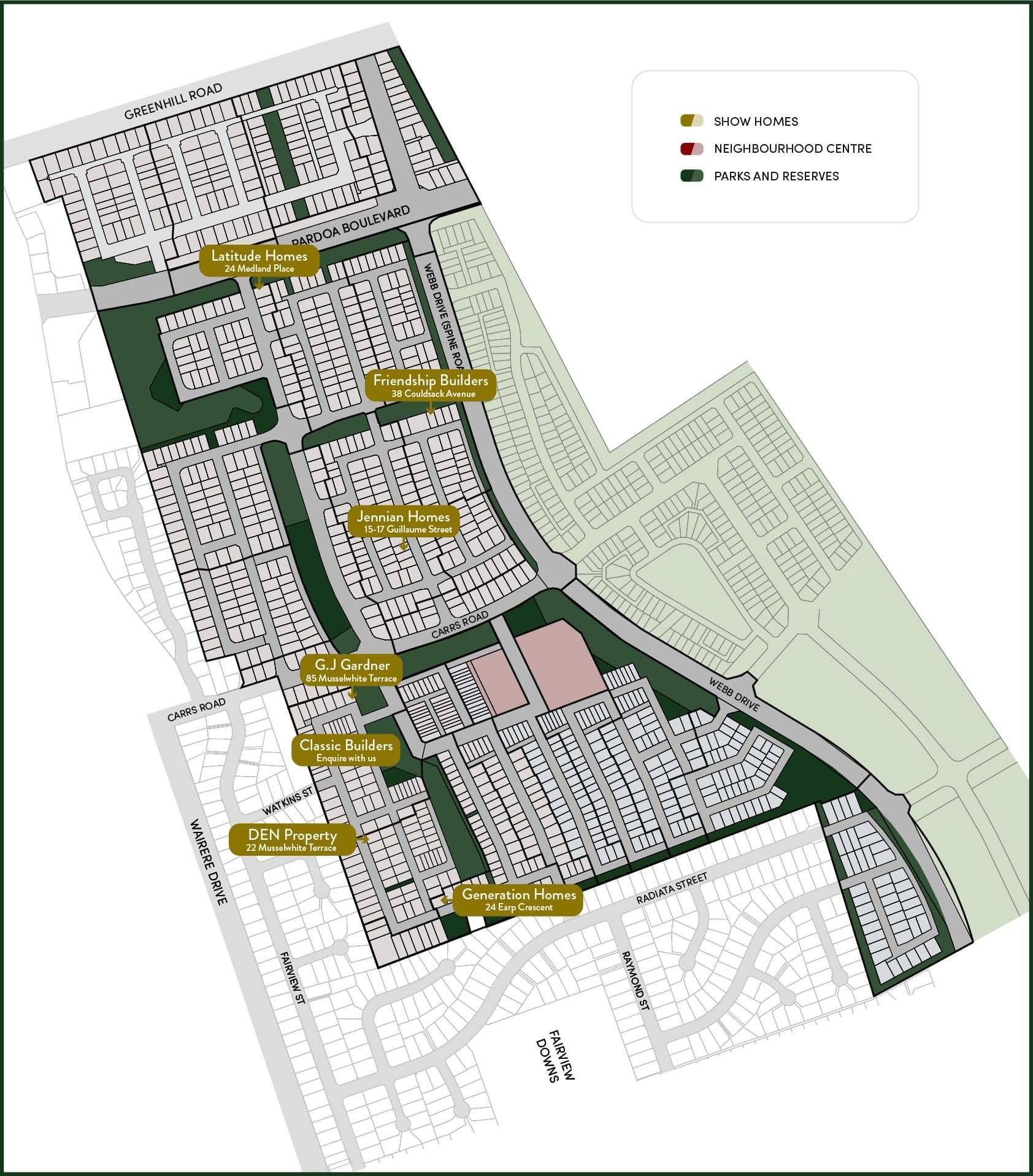
Visit the show homes and find a Preferred Building Partner
We’ve partnered with some of the Waikato’s most reputable builders who are familiar with Greenhill Park’s guidelines for new homes. They can offer you personalised home and land packages to suit your exact needs.
With a wide variety of single and two-storey house plans to choose from, it’s easy to create a beautiful new home that’s uniquely your own.


Buy with confidence
Established in the 1960s, Chedworth Properties is one of the region’s most trusted and experienced developers, having already sold over 6,000 sections across a number of successful Hamilton subdivisions in the last two decades alone.
We understand your home may be your biggest investment and you can buy with confidence, knowing we have a 60-year track record of consistently delivering the very highest standards in all we do.
Register your interest
Join our emailing list and be the first to know about new sections for sale.
Section sales & enquiries
T: 0800 639 929
E: info@greenhillpark.co.nz